PROFSRUB.BY
БЫСТРО, КАЧЕСТВЕННО, ДОСТУПНО!

Описание проекта

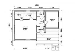
Баня 9х6м проект Эмма 54м2 из бруса

Представляем вам Сруб Бани из профилированного бруса по проекту "Эмма" 9х6м . Возможна внутренняя отделка .

• • • • • • •
Строим из бруса 150-150мм, 180-180, 200-200мм.

Цена под усадку от 9000 уе (по курсу в бел. рублях)

В стоимость входит комплект материалов , доставка и сборка. Отдельно рассчитывается фундамент, внутренняя отделка вагонкой, окна , двери, кровля.

• • • • • • •

Краткая спецификация:

  • • Размер: 9х6 м
    • Профилированный брус 150х150, 180х180, 200х200 мм.
    • Перегородка 100 на 150 
    • Балки перекрытия 180 на 200 
    • Стропильная система 50 на 150 
    • Лаги 150 на 150 
    • Обрешётка 20 на 100 
    • 20 на 40 
    • Фронтоны ( блок-хаус) 
    • Ветровки (блок-хаус) 
    • Пол(обрезная доска 25) 
    • Потолок(обрезная доска 25) 
    • Столбы 200 на 200 
    • Балясины 
    • Нагеля ( берёза) 
    • Межвенцевый утеплитель 
    • Кровельная плёнка 
    • Доставка и установка

    Отдельно: 
    • Винтовой фундамент 
    • Кровля (ондулин или металлочерепица)

Цена: 9000 $, 150-150мм

Наверх